så er jeg igang med mit akvarie projekt. idden har været jeg selv ville lave alt og samle alt selv. så jeg har lavet div. tegninger og fået sendt en ordre afsted på glasset. og imens har jeg lavet bordet det skal stå på samt købt div. udstyr ind..
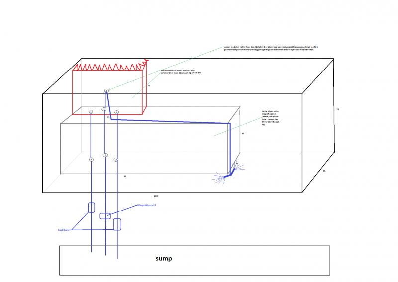
selva akvariet skal måle 100 cm bred, 75 dyb og 70 høj. drop off skal være på 2 sider og skal måle 35 cm i højden så vandstanden kommer til at være 65 cm på det dybe og ca. 30 på det lave.
jeg har tænkt mig at lime et alm akvarie sammen først på 100x75x70 og så lime en "kasse" i det ene hjørne bagefter.
der skal være 3 huller i overløbet til nedløb, sikkerhedsrør og retur. returen vil jeg så have til at løbe tilbage i akvariet i bunden af overløbskassen, og helt ned i bunden af tanken i den dybe ende. (se tegning)
de 2 front stykker skal være i weiss glas. og resten i alm 10 mm glas med 12 mm glasbund. og stivere i alle sider i toppen.
af teknik vil jeg have følgende på:
3 stk tunze 6055 med multicontroller
tunze doc skimmer 9011 (endtil jeg finder en større og pengene er til det.)
33 watts uv lys på returen.
maxspect razor 160 w
tunze osmolator
aquamedic fosfat reaktor
1 stk varmelegme 200 watt
senere planer:
kalkreaktor.
jeg vil have grus i bunden både på det lave og dybe sted.
ca. 1 cm det lave sted og ca. 3 cm det dybe sted, derfor har jeg også tænkt mig at lime toppladen på ca. 1 cm lavere end væggene så der er en lille kant til at holde på gruset.
selve sumpen er enkelt bygget op, den er 85x47 og 45 høj og er inddelt i nedløbskammer, reaktorkammer, skummerkammer bobbel fælde og returkammer evt se tegning.
endtil videre har jeg ingen planer om alger i sumpen, eller scape eller andet. jeg tror på vandskift 1 gang i ugen og generel vedligeholdelse er vejen frem.
af levende vil jeg gerne på sigt have både sps og lps, men først efter jeg har fået og "leget" lidt med kalkreaktoren så jeg ved hvordan det virker..
til sidst er der nu bare at vente på de 158 kg glas der skal leveres og slæbes op på 2. sal..


